The Place For Over 10.000 Popular Download, Design, Music, Anime, Wallpaper, Logo, Image and more.
20+ Alila Villas Uluwatu Site Plan Background
26/02/2018 00:00
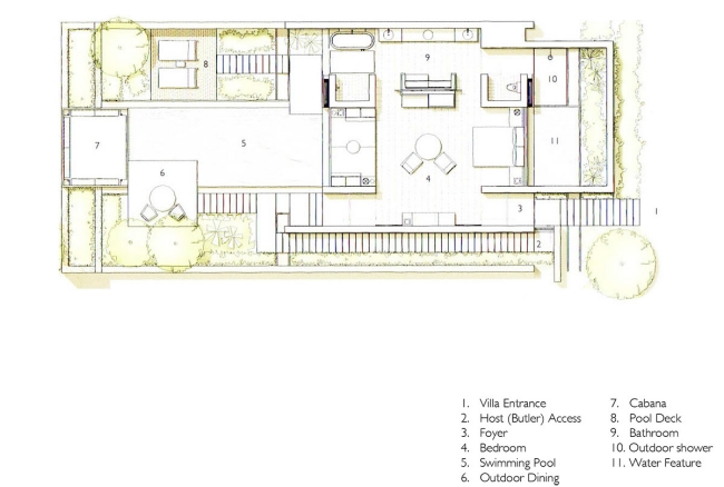
20+ Alila Villas Uluwatu Site Plan Background. The butlers are very professional and friendly, always think and plan ahead of us, keep track of our schedule, even help us make our tea! The luxury alila uluwatu in uluwatu is the perfect hotel when travelling in bali.
Alila Villas Uluwatu by WOHA | CONTEMPORIST from www.contemporist.com
Travelers eager for a bit of culture can stop by garuda wisnu kencana cultural park. Alila villas uluwatu is one of those dream hotels…a. Alila villas uluwatu, bali offers its guests an indoor pool, an outdoor pool, and a fitness center.
The hotel is just minutes away from the breathtaking uluwatu temple, one of bali's most fascinating locales, built around the 11th century.
All of the villas here are incredibly luxurious. Alila villas uluwatu, bali, pecatu. Alila villas uluwatu is bali's most spectacular hotel, located in the dry savannah landscape of the bukit peninsular in the south of the island. Feel a sense of blissful contentment as soon official site.